VIEMETAL purlins shaped "Z" can be used in building constructions for redusing the self-weight of the building . It ‘s installation can be with overlapping for long span buildings with multiple junctions and without overlapping. This can be because of the 4mm difference between two vertical sides (eg 70mm and 74mm). The advantage of the overlapping covering is the increasing resistance of the system because of the double thickness in the points of support.
VIEMETAL purlins shaped "Z" are produced by galvanised steel of high resistance S320 and Z275 according to (EN10326) with treatments of cold rolling in order to provide light and economic support system for roof coverings of buildings with metal skeleton.
"Z" profile can be produce to dimensions and lengths according to the customer desire, beginning from 500mm. The purlin can have holes ,based to the customer order and drawings with 14 mm and 18mm diameter while the smaller distance between the holes centres is L=40mm.
| No | a | b | c | t |
| 1 | 100 | 54 | 50 | 1.5-3.0 |
| 2 | 120 | 64 | 60 | 1.5-3.0 |
| 3 | 140 | 64 | 60 | 1.5-3.0 |
| 4 | 160 | 74 | 70 | 1.5-3.0 |
| 5 | 180 | 74 | 70 | 1.5-3.0 |
| 6 | 200 | 74 | 70 | 1.5-3.0 |
| 7 | 210 | 64 | 60 | 1.5-3.0 |
| 8 | 220 | 84 | 80 | 1.5-3.0 |
| 9 | 240 | 84 | 80 | 1.5-3.0 |
| X-X | Y-Y | U-U & W-W | |||||||||
| a | Weight kg/m |
Jx cm4 | Wx cm3 | -ey cm | +ey cm | Jy cm4 | Wy cm3 | ex cm | Ju cm4 | Jw cm4 | β degrees. |
| Ζ140-2.0 | 4.72 | 171.0 | 24.0 | 7.12 | 6.88 | 59.3 | 8.2 | 0.23 | 210.0 | 20.4 | 26.95 |
| Ζ180-2.0 | 5.37 | 337.6 | 37.0 | 9.13 | 8.87 | 66.6 | 9.1 | 0.22 | 376.8 | 27.4 | 19.58 |
| Ζ210-2.0 | 5.38 | 484.3 | 45.5 | 10.64 | 10.36 | 66.6 | 9.1 | 0.21 | 521.3 | 29.6 | 15.92 |
| Ζ210-2.5 | 7.29 | 601 | 56.5 | 10.64 | 10.36 | 81.7 | 11.3 | 0.23 | 646.2 | 36.5 | 15.81 |
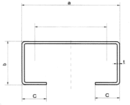
VIEMETAL purlins shaped "C" can be used for the wall support of metal buildings constructions for redusing the self-weight of the building. It can be use in simple but not overlapping multiple junctions. The connection between them is done with connection sleeves.
VIEMETAL purlins shaped "C" are produced by high resistance galvanised steel S320 and Z275 according to EN10326 with treatments of cold rolling so that they provide light and economic support system for coverings and side coverings of buildings with metal skeleton.
"C" profile can be produce to dimensions and lengths according to the customer desire, beginning from 500mm. The purlin can have holes, based to the customer order and drawings with 14 mm and 18mm diameter while the smaller distance between the holes centres is L=40mm.
| No | a | b | c | t |
| 1 | 80 | 40 | 15 | 2,0-3,0 |
| 2 | 100 | 40 | 15 | 2,0-3,0 |
| 100 | 50 | 20 | 2,0-3,0 | |
| 100 | 60 | 20 | 2,0-3,0 | |
| 3 | 120 | 50 | 20 | 2,0-3,0 |
| 120 | 60 | 20 | 2,0-3,0 | |
| 4 | 140 | 50 | 20 | 2,0-3,0 |
| 140 | 60 | 20 | 2,0-3,0 | |
| 5 | 160 | 60 | 20 | 2,0-3,0 |
| 160 | 70 | 20 | 2,0-3,0 | |
| 6 | 180 | 60 | 20 | 2,0-3,0 |
| 180 | 70 | 20 | 2,0-3,0 | |
| 7 | 200 | 60 | 20 | 2,0-3,0 |
| 200 | 70 | 20 | 2,0-3,0 | |
| 8 | 210 | 65 | 20 | 2,0-3,0 |
| 9 | 220 | 70 | 20 | 2,0-3,0 |
| 220 | 80 | 20 | 2,0-3,0 | |
| 10 | 240 | 70 | 20 | 2,0-3,0 |
| 240 | 80 | 20 | 2,0-3,0 | |
| 11 | 250 | 80 | 20 | 2,0-3,0 |
| X-X | Y-Y | ||||||
| a | Weight (kg/m) |
Jx (cm4 | Wx (cm3) | ex (cm) | Jy (cm4) | Wy (cm3) | ex (cm) |
| C140-2.0 | 4.72 | 172.3 | 24.6 | 7.12 | 26.6 | 5.9 | 1.87 |
| C180-2.0 | 5.37 | 334.9 | 37.2 | 9.13 | 39.0 | 7.9 | 1.96 |
| C210-2.0 | 5.38 | 484.3 | 45.7 | 10.64 | 40.8 | 8.0 | 1.81 |
| C210-2.5 | 7.29 | 601 | 56.8 | 10.64 | 50.1 | 9.9 | 1.81 |